ATENÇÃO Este site utiliza cookies. Ao navegar no site estará a consentir a sua utilização. Saiba mais sobre o uso de cookies.

Terreno para moradia

Penhalonga e Paços de Gaiolo, Marco de Canaveses (Porto)

329 999 €

Descrição

Terreno Exclusivo no Douro - Localidade de Dajas, Marco de Canaveses

COM PROJECTO APROVADO!

Se procura um local de tranquilidade e beleza natural, esta é a oportunidade ideal: um terreno único na encantadora região do Douro, localizado em Dajas, concelho de Marco de Canaveses.

Localização Privilegiada: O terreno situa-se numa zona com frente para o rio, oferecendo vistas deslumbrantes e um ambiente sereno que só o Douro pode proporcionar.

Área Total: 1005 metros quadrados, um espaço generoso para desenvolver o projeto dos seus sonhos.

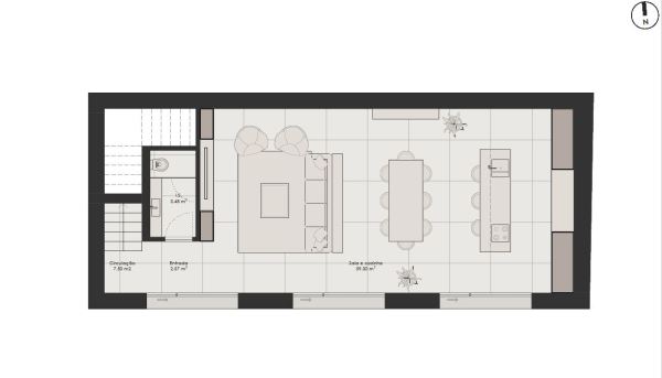
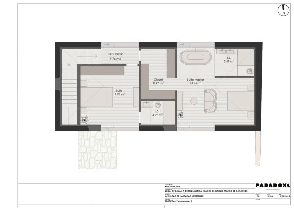
Capacidade Construtiva: Com uma capacidade construtiva de 270 metros quadrados de área de construção, o terreno possibilita a edificação de uma moradia espaçosa e moderna.

Projeto APROVADO: O terreno já conta com um projeto APROVADO, agilizando o processo de construção e permitindo uma visualização antecipada do potencial da propriedade.

Benefícios do Investimento:

Valor de Localização: Uma localização no Douro é sempre sinónimo de investimento seguro, com potencial de valorização contínua e uma experiência de vida única.

Liberdade Criativa: O projeto em aprovação permite flexibilidade para adaptações, assegurando que a construção futura atenda às suas necessidades específicas.

Beleza Natural e Serenidade: A proximidade ao rio e a envolvência natural fazem deste terreno um verdadeiro refúgio, perfeito para quem busca qualidade de vida.

Esta é uma oportunidade imperdível para adquirir um terreno com estas características numa das regiões mais procuradas de Portugal.

Invista no Douro, onde a natureza e a serenidade se encontram!

Para mais informações, não hesite em nos contactar.

Detalhes

  • DOURO_MARC
  • Compra
  • n/d
  • 1005 m²
  • 105 m²

Localização

/

Pedido de Informações

Esclareça as suas dúvidas acerca do imóvel

Características

Exterior

  • Area total: ;
  • Orientação solar:
    • Sul: ;
    • Nascente: ;
    • Poente: ;

Estacionamento

    Divisões

    • Quartos;
    • WC´s: ;